- à deux pas des commerces et services

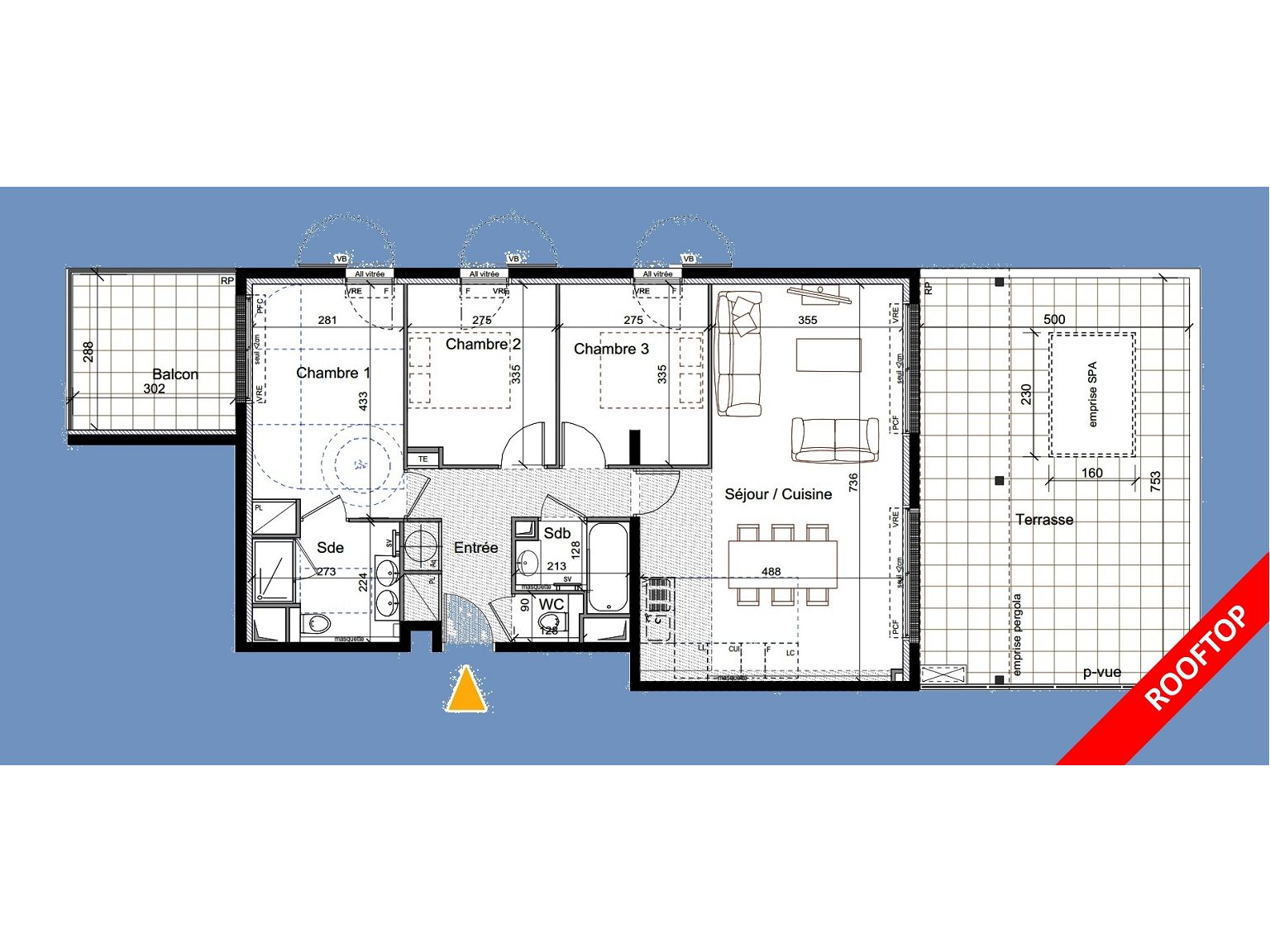
DERNIERE OPPORTUNITE avec VUE MER: appartement T4 (3 chambres) de 78,50m² avec un ROOFTOP de 38m², exposition sud-est.
Un séjour-cuisine de 31m², 3 chambres de 12,30m², 9m²  à 9m², une salle de bain (baignoire), 1 salle d'eau (douche), 2 toilettes.
Cet appartement T4 peut être déclinable en T3 (2 chambres).
Travaux en cours (au stade mise hors d'eau hors d'air).
ACTUELLEMENT EN OFFRE. Contactez-nous dès maintenant pour en profiter.

Prestations soignées:
•  Résidence sécurisée: plusieurs systèmes de sécurité adaptés à la résidence limitent les intrusions, visiophone, vigik, digicode...
•  Deux stationnements boxables en sous-sol, ascenseur sécurisé (contact à clé et lecteur vigik en cabine), portail automatique...
•  Un SPA (3 places) sera mise en place selon plan de vente
•  Une PERGOLA BIOCLIMATIQUE sera positionnée selon plan de vente
•  CUISINE aménagée, avec choix du cuisiniste, placards avec portes coulissantes non aménagés, peinture lisse blanche
•  Baies coulissantes en aluminium dans le séjour, fenêtres et portes fenêtres en PVC
•  Volets roulants à commande électrique et volets battants en aluminium
•  Pompe à chaleur triple service individuelle permettant la production de chauffage, de rafraîchissement et d’eau chaude.
•  Salle de bain avec faïences tout hauteur côté meuble vasque et receveur de douche, baignoire 170X80 avec pare-bain ou receveur 80X120 extra plat avec paroi de douche, meuble vasque suspendu (coloris au choix) avec miroir et applique lumineuse, sèche-serviettes
•  Toilette suspendu
•  Carrelage et faïences: dimensions et coloris au choix selon sélections proposées par le maître d'ouvrage
•  Terrasse: dalles sur plots, robinet de puisage, prise de courant
•  Pré-équipement pour bornes de recharge des véhicules électriques jusqu'à chaque emplacement de stationnement (câblage ultérieur à charge du futur copropriétaire)
Conception du bâtiment correspondant aux normes RT 2012 et bénéficiant du label NF logement: diagnostic énergétique DPE-GES estimés en B-A
FN réduits 2,5% au lieu de 8%.
DISPO déc 2026.

Visite sur rdv. Votre contact privilégié: Françoise RUSSAC, du lundi au samedi de 9h à 19h. 
Depuis 2007, ATP Immobilier met son expérience à votre disposition pour vous proposer des biens de qualité, que ce soit pour l'acquisition de votre futur habitation ou bien pour investir.

   



" />
lien bien facebook | lien bien google plus | lien bien twitter | lien bien Linkdin | Envoyer par e-mail Imprimer Quitter
Appartement T4
LA CIOTAT
890 000 - Référence : 621h5B6

Appartement T4 LA CIOTAT 890 000 - Référence : 621h5B6

Description

La résidence se prête tant pour un projet de résidence principale (ACCÈS au PRÊT à tx 0) tant pour un investissement patrimonial avisé : idéal pour de la LMNP. Pour cela, nous pouvons vous proposer si vous le désirez, une offre clé en main avec plusieurs packs au choix : pack meubles et/ou gestion comptable et fiscale et/ou gestion locative du bien et/ou cuisine.

Dans un quartier résidentiel et un environnement verdoyant, la résidence, de taille humaine, est PROCHE DE TOUT A PIEDS:
- à 10 mn à pieds des plages
- à 15 mn "........." de l'animation du vieux port
- à deux pas des commerces et services

DERNIERE OPPORTUNITE avec VUE MER: appartement T4 (3 chambres) de 78,50m² avec un ROOFTOP de 38m², exposition sud-est.
Un séjour-cuisine de 31m², 3 chambres de 12,30m², 9m²  à 9m², une salle de bain (baignoire), 1 salle d'eau (douche), 2 toilettes.
Cet appartement T4 peut être déclinable en T3 (2 chambres).
Travaux en cours (au stade mise hors d'eau hors d'air).
ACTUELLEMENT EN OFFRE. Contactez-nous dès maintenant pour en profiter.

Prestations soignées:
•  Résidence sécurisée: plusieurs systèmes de sécurité adaptés à la résidence limitent les intrusions, visiophone, vigik, digicode...
•  Deux stationnements boxables en sous-sol, ascenseur sécurisé (contact à clé et lecteur vigik en cabine), portail automatique...
•  Un SPA (3 places) sera mise en place selon plan de vente
•  Une PERGOLA BIOCLIMATIQUE sera positionnée selon plan de vente
•  CUISINE aménagée, avec choix du cuisiniste, placards avec portes coulissantes non aménagés, peinture lisse blanche
•  Baies coulissantes en aluminium dans le séjour, fenêtres et portes fenêtres en PVC
•  Volets roulants à commande électrique et volets battants en aluminium
•  Pompe à chaleur triple service individuelle permettant la production de chauffage, de rafraîchissement et d’eau chaude.
•  Salle de bain avec faïences tout hauteur côté meuble vasque et receveur de douche, baignoire 170X80 avec pare-bain ou receveur 80X120 extra plat avec paroi de douche, meuble vasque suspendu (coloris au choix) avec miroir et applique lumineuse, sèche-serviettes
•  Toilette suspendu
•  Carrelage et faïences: dimensions et coloris au choix selon sélections proposées par le maître d'ouvrage
•  Terrasse: dalles sur plots, robinet de puisage, prise de courant
•  Pré-équipement pour bornes de recharge des véhicules électriques jusqu'à chaque emplacement de stationnement (câblage ultérieur à charge du futur copropriétaire)
Conception du bâtiment correspondant aux normes RT 2012 et bénéficiant du label NF logement: diagnostic énergétique DPE-GES estimés en B-A
FN réduits 2,5% au lieu de 8%.
DISPO déc 2026.

Visite sur rdv. Votre contact privilégié: Françoise RUSSAC, du lundi au samedi de 9h à 19h. 
Depuis 2007, ATP Immobilier met son expérience à votre disposition pour vous proposer des biens de qualité, que ce soit pour l'acquisition de votre futur habitation ou bien pour investir.

   



Informations
Référence : 621h5B6
Nombre de pièces : 4
Nombre de chambres : 3
Nb place parking : 2
Nb Etage : 4
Nb Etage : 4
Surface habitable : 78.5 m²
Stationnement : Parking

NB : Les Honoraires d'agence seront intégralement à la charge du vendeur.
Prestations
Ascenseur : Oui
Terrasse : Oui
Piscine : Oui
Climatisation : Oui
Accès handicapé : Oui
Proche commoditiés : Oui
Type de chauffage : Climatisation réversible
État général : Bon état
Standing : Prestige