- à deux pas des commerces et services

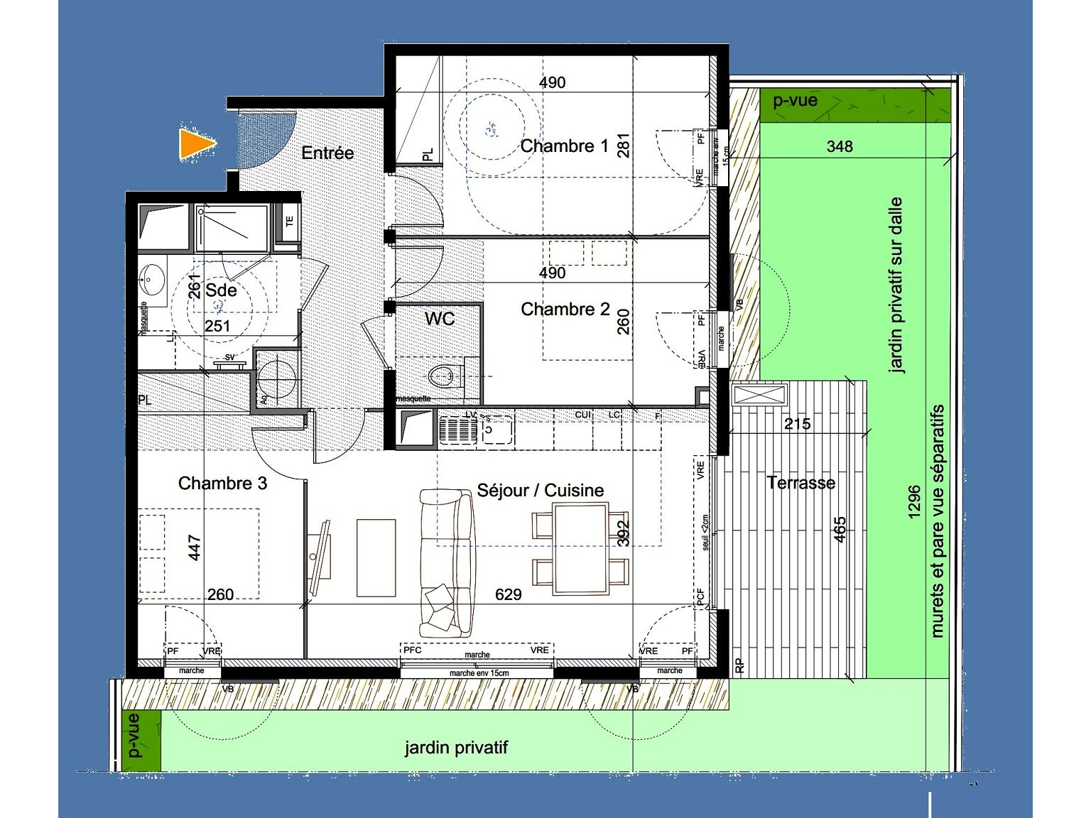
Appartement T4 (3 chambres) d'env 75m² avec un extérieur d'env 90m² (jardin et terrasse), exposition sud-est.
Un séjour-cuisine de 24m², 3 chambres de 14, 11, 10.50m² 12,50m², 1 salle d'eau (douche), toilette.
Cet appartement T4 peut être déclinable en T3 (2 chambres).
Travaux en cours (au stade mise hors d'eau hors d'air).
ACTUELLEMENT EN OFFRE. Contactez-nous dès maintenant pour en profiter.

Prestations soignées:
•  Résidence sécurisée: plusieurs systèmes de sécurité adaptés à la résidence limitent les intrusions, visiophone, vigik, digicode...
•  Deux stationnements en sous-sol, ascenseur sécurisé (contact à clé et lecteur vigik en cabine), portail automatique...
•  Pompe à chaleur triple service individuelle permettant la production de chauffage, de rafraîchissement et d’eau chaude
•  Baies coulissantes en aluminium dans le séjour, fenêtres et portes fenêtres en PVC
•  Volets roulants à commande électrique et volets battants en aluminium
•  CUISINE aménagée, avec choix du cuisiniste, placards avec portes coulissantes non aménagés, peinture lisse blanche
•  Salle de bain avec faïences tout hauteur côté meuble vasque et receveur de douche, baignoire 170X80 avec pare-bain ou receveur 80X120 extra plat avec paroi de douche, meuble vasque suspendu (coloris au choix) avec miroir et applique lumineuse, sèche-serviettes
•  toilette suspendu
•  Carrelage et faïences: dimensions et coloris au choix selon sélections proposées par le maître d'ouvrage
•  Terrasse: dalles sur plots, robinet de puisage, prise de courant
•  Jardin privatif: engazonné
•  Pré-équipement pour bornes de recharge des véhicules électriques jusqu'à chaque emplacement de stationnement (câblage ultérieur à charge du futur copropriétaire)
Conception du bâtiment correspondant aux normes RT 2012 et bénéficiant du label NF logement: diagnostic énergétique DPE-GES estimés en B-A
FN réduits de 2,5% au lieu de 8%.
DISPO déc 2026.

Visite sur rdv. Votre contact privilégié: Françoise RUSSAC, du lundi au samedi de 9h à 19h.   
Depuis 2007, ATP Immobilier met son expérience à votre disposition pour vous proposer des biens de qualité, que ce soit pour l'acquisition de votre futur habitation ou pour investir.

   



" />
lien bien facebook | lien bien google plus | lien bien twitter | lien bien Linkdin | Envoyer par e-mail Imprimer Quitter
Appartement T4
LA CIOTAT
525 000 HAI - Référence : 621c5B6

Appartement T4 LA CIOTAT 525 000 HAI - Référence : 621c5B6

Description

La résidence se prête tant pour un projet de résidence principale (ACCÈS au PRÊT à tx 0) tant pour un investissement patrimonial avisé : idéal pour de la LMNP. Pour cela, nous pouvons vous proposer si vous le désirez, une offre clé en main avec plusieurs packs au choix : pack meubles et/ou gestion comptable et fiscale et/ou gestion locative du bien et/ou cuisine.

Dans un quartier résidentiel et un environnement verdoyant, la résidence, de taille humaine, est PROCHE DE TOUT A PIEDS:
- à 10 mn à pieds des plages
- à 15 mn "........." de l'animation du vieux port
- à deux pas des commerces et services

Appartement T4 (3 chambres) d'env 75m² avec un extérieur d'env 90m² (jardin et terrasse), exposition sud-est.
Un séjour-cuisine de 24m², 3 chambres de 14, 11, 10.50m² 12,50m², 1 salle d'eau (douche), toilette.
Cet appartement T4 peut être déclinable en T3 (2 chambres).
Travaux en cours (au stade mise hors d'eau hors d'air).
ACTUELLEMENT EN OFFRE. Contactez-nous dès maintenant pour en profiter.

Prestations soignées:
•  Résidence sécurisée: plusieurs systèmes de sécurité adaptés à la résidence limitent les intrusions, visiophone, vigik, digicode...
•  Deux stationnements en sous-sol, ascenseur sécurisé (contact à clé et lecteur vigik en cabine), portail automatique...
•  Pompe à chaleur triple service individuelle permettant la production de chauffage, de rafraîchissement et d’eau chaude
•  Baies coulissantes en aluminium dans le séjour, fenêtres et portes fenêtres en PVC
•  Volets roulants à commande électrique et volets battants en aluminium
•  CUISINE aménagée, avec choix du cuisiniste, placards avec portes coulissantes non aménagés, peinture lisse blanche
•  Salle de bain avec faïences tout hauteur côté meuble vasque et receveur de douche, baignoire 170X80 avec pare-bain ou receveur 80X120 extra plat avec paroi de douche, meuble vasque suspendu (coloris au choix) avec miroir et applique lumineuse, sèche-serviettes
•  toilette suspendu
•  Carrelage et faïences: dimensions et coloris au choix selon sélections proposées par le maître d'ouvrage
•  Terrasse: dalles sur plots, robinet de puisage, prise de courant
•  Jardin privatif: engazonné
•  Pré-équipement pour bornes de recharge des véhicules électriques jusqu'à chaque emplacement de stationnement (câblage ultérieur à charge du futur copropriétaire)
Conception du bâtiment correspondant aux normes RT 2012 et bénéficiant du label NF logement: diagnostic énergétique DPE-GES estimés en B-A
FN réduits de 2,5% au lieu de 8%.
DISPO déc 2026.

Visite sur rdv. Votre contact privilégié: Françoise RUSSAC, du lundi au samedi de 9h à 19h.   
Depuis 2007, ATP Immobilier met son expérience à votre disposition pour vous proposer des biens de qualité, que ce soit pour l'acquisition de votre futur habitation ou pour investir.

   



Informations
Référence : 621c5B6
Nombre de pièces : 4
Nombre de chambres : 3
Nb place parking : 2
Nb Etage : 4
Surface habitable : 74.5 m²
Stationnement : Parking

NB :
Honoraires : 0% TTC à la charge de l'acquéreur
Prix de vente hors frais d'agence : 525000€.
Prestations
Ascenseur : Oui
Terrasse : Oui
Climatisation : Oui
Accès handicapé : Oui
Proche commoditiés : Oui
Type de chauffage : Climatisation réversible
État général : Bon état
Standing : Haut